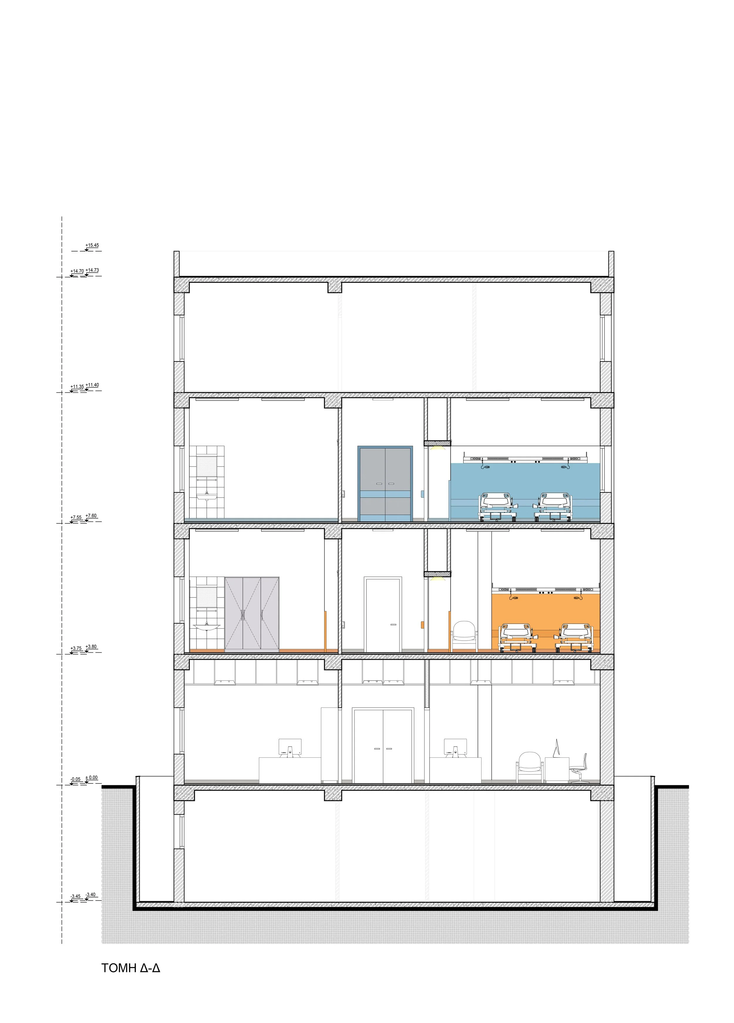
Renovation of General Hospital: Agios Pavlos

Thessaloniki, Greece

K- Architects
A. Panou, E. Zoumboulidou
S. Papadaki, Chr. Karanikola

E/M engineers
G. Lagos, K. Sarropoulos

3d images
Simos Grigoriadis

total built area
6.260 sqm

design
2023

construction
2024 - today

The administration building of EYATH SA consists of two basements, ground floor, mezzanine, seven floors, a recess and a roof. The original architectural design was by the architect D. Damparliagas - Saltos in 1965. The main problems of the building today are the inadequate structural behaviour in relation to the current regulations, its problematic energy performance due to lack of effective insulation and sun protection, the new uses that are to be housed in the building, the problematic active and passive fire protection and the several damages due to the age of the building.

According to the new study, the EYATH administration building will accomodate 130 employees and will have meeting and event rooms, the necessary facilities for the disabled and an adequate seismic protection. The structural frame will be strengthened while the whole interior space and the exterior skin of the building will be redesigned and reconstructed. The new skin consists of a combination of double-lit sandblasted insulating glass strips (channel glass) and glazed zones. This skin is protected on the outside by translucent rotating fins made of sandwich-type fabric glass (synthetic fiber mesh laminated in glass), which allow the view from the inside and provide adequate sun protection from the outside. The glass fins are placed in front of the glazed areas and framed within a metal structure, forming trapezoidal surfaces, reducing in height as they approach the neighboring buildings. In its new form, the building will have advanced automation and control systems and will have nearly zero energy consumption, upgraded to category A instead of Z, where it is currently classified.